Beschrijving
Aan de Heerenlandstraat 23 staat een verrassend ruime hoekwoning die jou alle mogelijkheden biedt om comfortabel te wonen én te genieten. Met een woonoppervlakte van maar liefst 157 m² en een perceel van 268 m² beschik je hier over veel leefruimte, zowel binnen als buiten. De woning heeft een moderne afwerking, maar laat ook voldoende ruimte voor je eigen stijl en inbreng. Grote ramen zorgen voor veel licht, terwijl de indeling uitnodigt om elke ruimte optimaal te benutten. Van de royale woonkamer en de complete keuken tot de vier ruime slaapkamers en de nette badkamer: alles voelt verzorgd en praktisch. Daarbij heb je de luxe van een eigen garage, een diepe tuin met meerdere overkappingen én zonnepanelen op het dak, waardoor je profiteert van lagere energielasten. Dit is een woning waar je zonder moeite intrekt, maar die je ook de kans geeft om je eigen woonideeën stap voor stap te verwezenlijken.
De buurt
Guttecoven is een rustige en kindvriendelijke kern van de gemeente Sittard-Geleen. Je woont hier in een groene omgeving met een gemoedelijke dorpssfeer, waar buren elkaar nog kennen. Voorzieningen zoals basisscholen, sportvelden en winkels voor de dagelijkse boodschappen vind je dichtbij. Bovendien ben je met de auto in enkele minuten op de A2 en A76, waardoor steden als Sittard, Maastricht en Heerlen uitstekend bereikbaar zijn. Ook wandel- en fietsliefhebbers halen hier hun hart op: het omliggende landschap biedt volop routes door de natuur. Een ideale plek dus voor wie de rust van een dorp wil combineren met een centrale ligging in Limburg.
Indeling
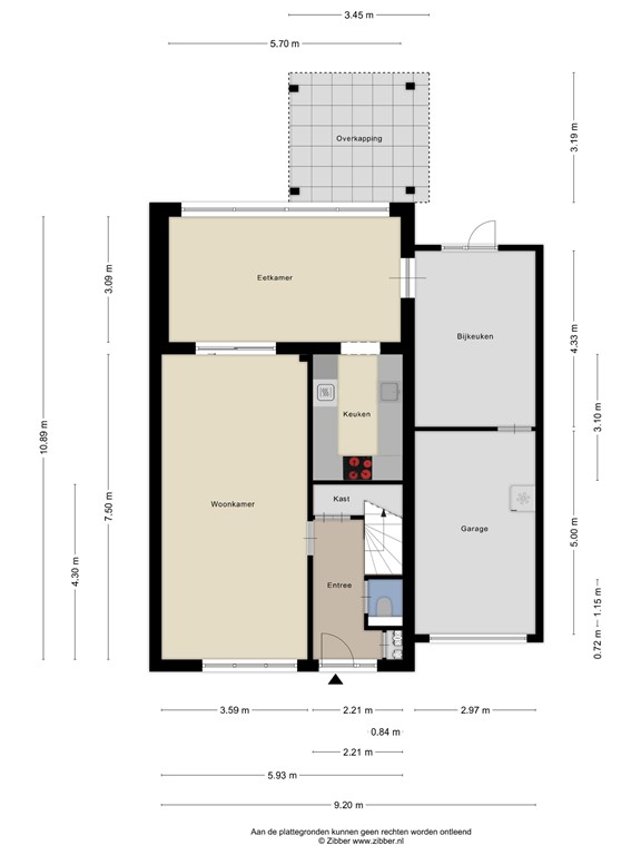
Begane grond
Je stapt de woning binnen via de hal met toilet, trapopgang en trapkast, en komt vervolgens uit in de ruime woonkamer. Dankzij de grote raampartijen en de open indeling voelt dit meteen licht en uitnodigend aan, met volop plek voor een royale zithoek. Aan de achterzijde is de woning uitgebouwd met een serre die perfect dienstdoet als eetkamer. Hier kun je met gemak een grote, comfortabele eethoek kwijt en geniet je van een prachtig uitzicht op de tuin. Een heerlijke plek voor lange avonden tafelen of gezellig borrelen met vrienden. Door de vele ramen voelt het licht en ruim aan, en de houten afwerking geeft een warme uitstraling. Extra fijn: door de slimme aanbouw heb je er aanzienlijk meer woonruimte bij gekregen zonder dat je inlevert op de grootte van de tuin. De moderne keuken sluit hier direct op aan en is strak afgewerkt met greeploze fronten en voorzien van inbouwapparatuur. Zo beschik je over een inductiekookplaat, vlakschermafzuigkap, dubbele combi-oven, vaatwasser, Quooker en een koel-/vriescombinatie. Naastgelegen vind je de ruime en praktische bijkeuken, met een loopdeur richting de garage – ideaal voor fietsen, voorraad of hobby’s.
Eerste verdieping
Eerste verdieping
De overloop is voorzien van airconditioning en leidt je naar drie ruime slaapkamers, elk met een eigen karakter en volop mogelijkheden voor een gezin of gasten. De slaapkamers zijn stuk voor stuk licht, voorzien van een doorlopende pvc-vloer en praktisch ingedeeld, zodat je ze eenvoudig inricht naar wens. De badkamer is modern afgewerkt en uitgerust met een ligbad, douchecabine, wastafelmeubel, hangkast en tweede toilet. De combinatie van lichte wandtegels en houtaccenten geeft deze ruimte een frisse, eigentijdse uitstraling.
Tweede verdieping
Tweede verdieping
Een vaste trap brengt je naar de tweede verdieping, waar je een vierde, royale slaapkamer aantreft. Dankzij de dakkapel is dit een volwaardige kamer met veel daglicht. Deze verdieping is ideaal als master bedroom, werkkamer of hobbyruimte en beschikt daarnaast over bergruimte waar de cv-opstelling zich bevindt.
Tuin
Buitenruimte
De achtertuin is verrassend ruim en onderhoudsvriendelijk ingericht met veel bestrating, een stukje groen en meerdere overkappingen. Zo heb je altijd een plek waar je beschut kunt zitten, of je nu van de zon wilt genieten of juist in de schaduw ontspant. Achter in de tuin staat een ruime houten overkapping met berging, perfect voor een loungehoek, een buitenspeelplek of het opbergen van fietsen en tuingereedschap. Dankzij de hoekligging geniet je hier van veel privacy. Aan de voorzijde beschik je bovendien over een eigen oprit, waardoor parkeren op eigen terrein geen enkel probleem is.
Bijzonderheden
Bijzonderheden
• Royale hoekwoning
• Moderne afwerking
• Woonoppervlakte: ca. 157 m²
• Perceel: ca. 268 m²
• Strakke keuken met luxe inbouwapparatuur
• Serre als extra leefruimte
• Praktische bijkeuken en inpandige garage
• Vier ruime slaapkamers
• Moderne badkamer met ligbad en douche
• Zonnepanelen en airconditioning aanwezig
• Grote achtertuin met meerdere overkappingen en berging
• Parkeren op eigen terrein
Afsluiting
Heerenlandstraat 23 is een woning die alles in zich heeft: ruimte, comfort en mogelijkheden om er helemaal jouw thuis van te maken. Met zijn royale indeling, fijne tuin en praktische voorzieningen biedt dit huis je de perfecte basis voor jarenlang woonplezier. Kom het zelf ervaren en laat je verrassen door de ruimte en de sfeer die deze woning uitstraalt. Plan snel een bezichtiging en ontdek of dit jouw nieuwe plek wordt.
Plattegronden
176873167_1577509_heere_begane_grond_first_design_20250916_beb822.jpg
176873167_1577509_heere_begane_grond_tu_first_design_20250916_af05a7.jpg
176873167_1577509_heere_berging_first_design_20250916_2606b3.jpg
176873167_1577509_heere_eerste_verdiepi_first_design_20250916_3187a3.jpg
176873167_1577509_heere_tweede_verdiepi_first_design_20250916_4b98e0.jpg