Beschrijving
We hebben weer een prachtige woning voor u! Het is een ideale plek voor gezinnen die comfort willen combineren met nabijheid van voorzieningen en natuur. De beschrijving benadrukt de renovaties en uitbreidingen van het huis, wat erop wijst dat het modern en goed onderhouden is. Het huis biedt voldoende ruimte, met meerdere slaapkamers en badkamers verdeeld over verschillende verdiepingen en een ruime aanbouw.
Indeling
De begane grond van deze woning biedt een uitstekende combinatie van moderne gemakken en sfeervolle elementen. Bij binnenkomst via de hal, voorzien van een keramische tegelvloer, zijn alle benodigde voorzieningen direct toegankelijk, zoals een toilet met fonteintje.
De woonkamer aan de voorzijde ademt een gezellige sfeer uit en biedt toegang tot de ruime aanbouw via prachtige openslaande deuren. Deze aanbouw, gerealiseerd in 2018, is veelzijdig en ruim opgezet. Het beschikt over een leefkeuken, een comfortabel zitgedeelte, een bijkeuken, berging, een ruime slaapkamer met inloopkast, en een moderne badkamer.
De badkamer is speels ingericht en van alle luxe voorzien, zoals een badmeubel, toilet, whirlpool en een royale inloop regendouche. Deze ruimte biedt een ideale omgeving voor zowel ontspanning als functionaliteit. Kortom, de begane grond combineert elegantie met hedendaags wooncomfort en voorziet in alle behoeften van een modern gezin.
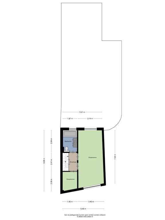
Eerste verdieping
De eerste verdieping van deze woning is praktisch en comfortabel ingericht. Via de overloop zijn twee ruime slaapkamers bereikbaar; oorspronkelijk waren dit er drie, maar de nieuwe indeling biedt nu extra ruimte en comfort. Beide slaapkamers zijn voorzien van een stijlvolle laminaatvloer, wat bijdraagt aan de moderne uitstraling van het interieur.
De luxe badkamer op deze verdieping biedt alle voorzieningen voor ontspanning en gemak. Het is uitgerust met een mooi afgewerkt badmeubel, een toilet en een ligbad met geïntegreerd douchegedeelte. Deze badkamer combineert functionaliteit met stijl en biedt een ideale plek om te ontspannen na een lange dag. Kortom, de eerste verdieping biedt voldoende ruimte en comfort voor het hele gezin.
Tweede verdieping
Op de tweede verdieping van deze woning bereik je via een vaste trap de zolderruimte, die nog meer wooncomfort biedt. Deze verdieping herbergt een extra slaapkamer, die is voorzien van een laminaatvloer. De aanwezigheid van een dubbele dakkapel zorgt voor veel natuurlijk lichtinval en vergroot de ruimtegevoel aanzienlijk, waardoor het een ideale plek is voor een slaapkamer, thuiskantoor of hobbyruimte. Deze toevoeging maakt de tweede verdieping tot een veelzijdige en functionele aanvulling op de woonruimte.
Tuin
De tuin is duidelijk een bijzondere troef van deze woning, met diverse voorzieningen zoals een buitenkeuken, mancave en wandelpaden. Dit maakt het niet alleen een plek om te wonen, maar ook om te ontspannen en te genieten van het buitenleven.
Kortom, als u op zoek bent naar een ruime en veelzijdige woning die zowel binnen als buiten veel te bieden heeft, dan is dit huis zeker een optie om te overwegen!
Bijzonderheden
- Deze woning biedt een scala aan voordelen die het leven comfortabel en modern maken.
- De mogelijkheid voor dubbele bewoning maakt het huis bijzonder geschikt voor grote gezinnen of als investering voor verhuur.
- Het vernieuwde leidingwerk, de elektra en de meterkast verzekeren u van een veilige en efficiënte infrastructuur.
- De aanbouw, geheel vernieuwd sinds 2018, is voorzien van een stijlvolle keramische tegelvloer met vloerverwarming, waardoor het altijd aangenaam aanvoelt.
- Daarbij is de woning gerenoveerd met behoud van authentieke elementen, wat het een unieke charme geeft.
- Met kunststof kozijnen en dubbel glas bent u verzekerd van goede isolatie en duurzaamheid.
- De woning beschikt over vier slaapkamers en twee modern ingerichte badkamers, waardoor er voldoende ruimte is voor het hele gezin.
- Een recente CV-ketel van het merk Vaillant (uit 2020) garandeert efficiënte verwarming.
- Bovendien ligt de woning gunstig nabij openbaar vervoer en uitvalswegen, wat het dagelijks woon-werkverkeer vergemakkelijkt.
- Kortom, het huis is niet alleen mooi gerenoveerd maar ook praktisch en toekomstbestendig.
Ter bescherming van de belangen van zowel koper als verkoper, wordt uitdrukkelijk gesteld dat een koopovereenkomst met betrekking tot deze onroerende zaak eerst dan tot stand komt nadat koper en verkoper de koopovereenkomst hebben getekend “schriftelijkheidsvereiste”). De termijn die wordt opgenomen voor eventuele (overeengekomen) ontbindende voorwaarden (bv. Financiering) is in de regel 4 tot 6 weken na het sluiten van de mondelinge wilsovereenkomst. De waarborgsom/bankgarantie is 10% van de koopsom. De koper dient deze 2 weken ná het vervallen van de ontbindende voorwaarden bij de desbetreffende notaris te deponeren. Koper is te allen tijde gerechtigd voor eigen rekening een bouwkundige keuring te (laten) verrichten dan wel andere adviseurs te raadplegen teneinde een goed inzicht te verkrijgen over de staat van onderhoud. Deze informatie is door ons met de nodige zorgvuldigheid samengesteld. Onzerzijds wordt echter geen enkele aansprakelijkheid aanvaard voor enige onvolledigheid, onjuistheid of anderszins, dan wel de gevolgen daarvan. Alle opgegeven maten en oppervlakten zijn indicatief
Plattegronden
450530_2D_Kelder_Jongmansweg_53_Heerlen_05.jpg
450530_2D_Begane_grond_Jongmansweg_53_Heerlen_01.jpg
450530_2D_Begane_grond_Tuin_Jongmansweg_53_Heerlen_07.jpg
450530_2D_Eerste_verdieping_Jongmansweg_53_Heerlen_02.jpg
450530_2D_Tweede_verdieping_Jongmansweg_53_Heerlen_03.jpg
450530_2D_Berging_Jongmansweg_53_Heerlen_08.jpg
450530_2D_Tuinhuis_Jongmansweg_53_Heerlen_04.jpg
450530_2D_Tuinhuis_Jongmansweg_53_Heerlen_06.jpg