Beschrijving
Modern wonen met verrassend veel leefruimte, verdeeld over meerdere niveaus
Achter deze hoekwoning uit 1962 gaat een indeling schuil die net even anders is dan je verwacht. Met een woonoppervlakte van 136 m² is de ruimte verdeeld over meerdere niveaus, waardoor wonen, koken en slapen ieder een eigen plek krijgen binnen het geheel. Dat zorgt voor rust in gebruik en tegelijkertijd voor flexibiliteit in hoe je de woning benut.
De begane grond richt zich vooral op koken en werken, terwijl de eerste verdieping juist is ingericht voor het dagelijkse wonen. Op de tweede verdieping komen de slaapkamers en de badkamer samen, waardoor een duidelijke scheiding ontstaat tussen de verschillende functies in huis.
Naast de indeling is ook de afwerking in de afgelopen jaren aangepakt. De keuken, vloeren en wanden zijn verzorgd uitgevoerd, waardoor het geheel een moderne uitstraling heeft gekregen. In combinatie met de achtertuin, de overkappingen en het parkeren op eigen terrein ontstaat hier een woning die praktisch is ingericht en direct te gebruiken is voor uiteenlopende woonwensen.
De buurt
Unescoplantsoen ligt in een rustige woonwijk in Heerlen, met een mix van gezinswoningen en groenvoorzieningen in de directe omgeving. Voor de dagelijkse boodschappen zijn supermarkten en winkels binnen circa 5 fietsminuten bereikbaar, terwijl het centrum van Heerlen op ongeveer 10 minuten afstand ligt.
Scholen, sportvoorzieningen en openbaar vervoer bevinden zich eveneens in de nabijheid. Met de auto zijn de uitvalswegen richting onder andere de A76 en A79 binnen enkele minuten te bereiken, wat zorgt voor een goede verbinding richting Maastricht, Sittard en Aken.
Indeling
Begane grond
Via de entree kom je in de hal, waar de trapopgang en diverse praktische bergruimtes zijn ondergebracht. Vanuit hier loopt de indeling door naar de leefkeuken aan de achterzijde van de woning.
De keuken is opgesteld in een U-vorm en voorzien van een ontbijtbar, wat zorgt voor extra werk- en zitruimte. Ingebouwde apparatuur zoals een inductiekookplaat, afzuigkap, combi-oven, vaatwasser en koelkast zijn aanwezig. De naastgelegen bergkast biedt extra opbergruimte, en via de deur is er directe toegang tot de tuin, waardoor binnen en buiten eenvoudig met elkaar te verbinden zijn.
Eerste verdieping
Eerste verdieping
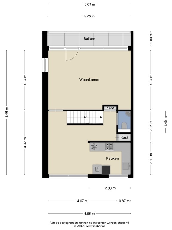
Op de eerste verdieping ligt het woongedeelte. Aan de achterzijde bevindt zich de woonkamer, die profiteert van veel daglicht en is voorzien van airconditioning. Via de deur is het balkon bereikbaar, wat een extra buitenmoment toevoegt aan deze verdieping.
Aan de voorzijde zijn het moderne toilet en een tweede keuken gerealiseerd, uitgevoerd in een hoekopstelling met diverse apparatuur (gaskookplaat, afzuigkap). Deze ruimte biedt mogelijkheden voor gebruik als extra kookruimte, maar kan ook anders worden ingevuld afhankelijk van de woonwensen.
Tweede verdieping
Tweede verdieping
De tweede verdieping is ingericht met drie slaapkamers, die stuk voor stuk goed bruikbaar zijn. Eén van de kamers beschikt over airconditioning en heeft toegang tot een tweede balkon.
De overloop is voorzien van een grote inbouwkast, wat zorgt voor praktische bergruimte zonder dat dit ten koste gaat van de kamers. De badkamer is netjes uitgevoerd en beschikt over een douche, wastafelmeubel en een tweede toilet.
Tuin
Buitenruimte
De achtertuin is volledig omheind en onderhoudsvriendelijk ingericht. Door de opzet en de ligging is er volop privacy aanwezig, terwijl er voldoende ruimte is voor zowel ontspanning als gebruik met meerdere personen.
Direct naast elkaar zijn twee overkappingen geplaatst, waardoor er ook bij minder weer gebruik gemaakt kan worden van de buitenruimte. Daarnaast is er een berging aanwezig en is de tuin bereikbaar via een achterom.
Aan de voorzijde van de woning is volop ruimte om op eigen terrein te parkeren, wat een praktische toevoeging is binnen deze woonomgeving.
Bijzonderheden
Bijzonderheden
• Ruime hoekwoning
• Woonoppervlakte: 136 m²
• Perceeloppervlakte: 169 m²
• Bouwjaar: 1962
• Moderne afwerking
• Goed onderhouden en instapklaar
• Leefkeuken met U-opstelling, ontbijtbar en inbouwapparatuur en voorzien van vloerverwarming
• Woonkamer op de eerste verdieping met airco en balkon
• Tweede keuken op de eerste verdieping
• Drie slaapkamers op de tweede verdieping
• Slaapkamer met balkon en airco
• Grote inbouwkast op de overloop
• Badkamer met tweede toilet
• Royale, onderhoudsvriendelijke achtertuin met twee overkappingen
• Berging en achterom aanwezig
• Ruim parkeren op eigen terrein
De 11 zonnepanelen zijn eigendom en de c.v. ketel is gehuurd via VOLTA, 2017, 33,18 euro per maand.
Afsluiting
Een woning met een speelse indeling, moderne afwerking en verrassend veel gebruiksmogelijkheden. Interesse? Neem contact op voor een bezichtiging.
Plattegronden
184898248_1645008_unesc_begane_grond__t_first_design_20260424_253484.jpg
184898248_1645008_unesc_begane_grond_first_design_20260424_08e4d6.jpg
184898248_1645008_unesc_berging_first_design_20260424_0e2317.jpg
184898248_1645008_unesc_eerste_verdiepi_first_design_20260424_e3ec81.jpg
184898248_1645008_unesc_tweede_verdiepi_first_design_20260424_f995ac.jpg
184898248-301196329-se-154642585-1777066280160.png
184898248-301255627-se-154642585-1777066280160.png
184898248-301256107-se-154642585-1777066280160.png
184898248-301265920-se-154642585-1777066280160.png
184898248-301274752-se-154642585-1777066280160.png