Beschrijving
Wilt u graag een karakteristieke woning met vijf slaapkamers, gelegen op een goede locatie in Hoensbroek, sfeervol en ruim van binnen. Echt een plaatje om te zien! Is dit uw woning? Mail ons dan voor een bezichtiging!
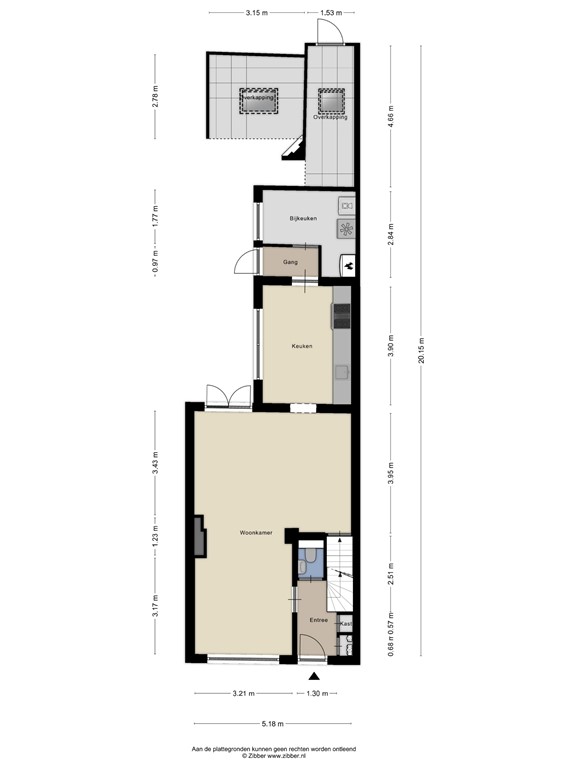
Indeling
In de hal/entree bevindt zich het toilet en de trapopgang naar de eerste verdieping, de meterkast en een bergkast. Het toilet is deels betegeld en voorzien van een vrij hangend toilet en fonteintje. De woonkamer is gezellig ingericht en heeft veel lichtinval. De woonkamer is voorzien van een mooie planken vloer en sfeervol afgewerkt. Via de woonkamer kunt u de manshoge kelder bereiken. Via de doorgang komt u in de moderne keuken. De keuken is in een rechte opstelling geplaatst en voorzien van diverse berglades en mooi gasfornuis met oven en 6 pitten en een afzuiging. Voorzien van een mooie tegelvloer en ook in de keuken heeft u veel lichtinval. Via de keuken komt u in de bijkeuken met toegang naar de tuin. In de bijkeuken bevindt zich de c.v. opstelling (bwjr 2019) en de witgoedaansluitingen.
Eerste verdieping
Op deze verdieping treft u aan twee ruime slaapkamers, een badkamer en een apart toilet. De slaapkamers zijn keurig netjes verzorgd, voorzien van kunststof kozijnen en HR ++ beglazing en 3.28m x 3.80m en 3.28m x 4.14m groot. De badkamer is voorzien van een douche, ligbad en wastafel met kastje en spiegel. Het toilet is deels betegeld en voorzien van een fonteintje.
Tweede verdieping
Op deze verdieping treft u drie slaapkamers aan, keurig en netjes verzorgd, ook kunststof kozijnen en HR++ beglazing en deze zijn 2.28m x 2.64m, 2.85m x 3.83m en 2.93m x 4.02m groot. De grootste slaapkamer gelegen aan de achterkant heeft ook toegang tot een dakterras.
Tuin
Een heerlijke sfeervolle en knusse tuin met overkapping en houthaard en met een achterom.
Bijzonderheden
- Instapklare woning!
- Sfeervol afgewerkte jaren 30 woning;
- Knusse en sfeervolle tuin met een houthaard;
- 5 slaapkamers;
- Moderne keuken;
- Goede locatie Mariarade-Zuid in Hoensbroek;
- Absoluut een bezichtiging waard!
Ter bescherming van de belangen van zowel koper als verkoper, wordt uitdrukkelijk gesteld dat een koopovereenkomst met betrekking tot deze onroerende zaak eerst dan tot stand komt nadat koper en verkoper de koopovereenkomst hebben getekend “schriftelijkheidsvereiste”). De termijn die wordt opgenomen voor eventuele (overeengekomen) ontbindende voorwaarden (bv. Financiering) is in de regel 4 tot 6 weken na het sluiten van de mondelinge wilsovereenkomst. De waarborgsom/bankgarantie is 10% van de koopsom. De koper dient deze 2 weken ná het vervallen van de ontbindende voorwaarden bij de desbetreffende notaris te deponeren. Koper is te allen tijde gerechtigd voor eigen rekening een bouwkundige keuring te (laten) verrichten dan wel andere adviseurs te raadplegen teneinde een goed inzicht te verkrijgen over de staat van onderhoud. Deze informatie is door ons met de nodige zorgvuldigheid samengesteld. Onzerzijds wordt echter geen enkele aansprakelijkheid aanvaard voor enige onvolledigheid, onjuistheid of anderszins, dan wel de gevolgen daarvan. Alle opgegeven maten en oppervlakten zijn indicatief.
Plattegronden
428281_2D_Kelder_Emmastraat_141_Hoensbroek_04.jpg
428281_2D_Begane_Grond_Emmastraat_141_Hoensbroek_01.jpg
428281_2D_Begane_GrondTuin_Emmastraat_141_Hoensbroek_05.jpg
428281_2D_Eerste_Verdieping_Emmastraat_141_Hoensbroek_02.jpg
428281_2D_Tweede_Verdieping_Emmastraat_141_Hoensbroek_03.jpg