Beschrijving
Aan de Ruiterstraat 16 in Horn treft u een goed onderhouden gezinswoning met veel ruimte en mogelijkheden. De woning heeft een totale gebruikersoppervlakte van 122m2, drie slaapkamers, een lichte woonkamer met aangrenzende keuken, ruime badkamer, een multi-inzetbare zolderverdieping, een garage én een onderhoudsarme achtertuin met overkapping. Dit creëert een fijne combinatie van ruimte en comfort.
De woning ligt in een rustige en kindvriendelijke wijk met dagelijkse voorzieningen op korte afstand. Scholen, kinderopvang en diverse sportverenigingen zijn gemakkelijk bereikbaar. Ook meerdere supermarkten en winkels bevinden zich nabij, wat de locatie bijzonder praktisch maakt. De bushalte op loopafstand biedt goede verbindingen met omliggende plaatsen, terwijl de nabijgelegen uitvalswegen richting Roermond, Weert en Venlo zorgen voor een uitstekende bereikbaarheid met de auto.
Indeling
Entree
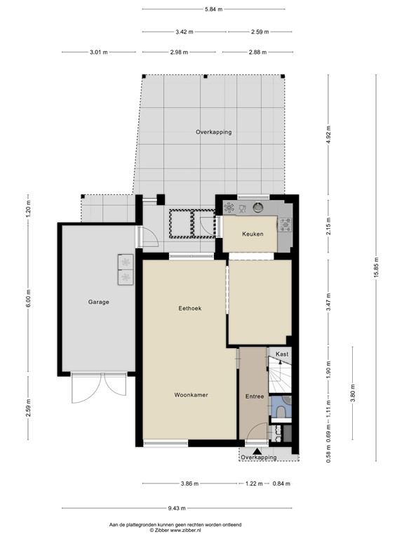
Aan de voorzijde betreedt u de woning via de kleine voortuin, waar tevens de oprit met parkeerruimte voor de auto ligt. Zodra u binnenstapt, komt u in de hal, welke toegang geeft tot de toiletruimte, de trap naar de eerste verdieping en de doorgang naar de woonkamer.
Woonkamer
De woonkamer vormt het hart van het huis en straalt veel ruimte en licht uit. De grote raampartijen laten veel daglicht binnen, waardoor zowel het zitgedeelte als de eethoek een warme en uitnodigende sfeer ademen. De open indeling zorgt voor veel mogelijkheden om uw woonkamer in te richten. De aanwezige airconditioning zorgt hierbij voor extra comfort tijdens warme dagen.
Keuken
Aan de achterzijde van de woning bevindt zich de open keuken in praktische L-vormige opstelling. Deze is voorzien van een inductiekookplaat, spoelbak, vaatwasmachine, koelkast en voldoende opbergruimte in zowel lades als bovenkasten. De keuken is netjes onderhouden en instapklaar, maar biedt ook mogelijkheden om deze desgewenst naar eigen smaak te moderniseren. Vanuit de keuken heeft u directe toegang tot de tuin.
Eerste verdieping
1e verdieping
Via de vaste trap bereikt u de eerste verdieping, waar twee slaapkamers en de badkamer zijn gelegen. De overloop verbindt deze ruimtes op logische wijze met elkaar.
Slaapkamers
De twee slaapkamers op deze verdieping zijn ruim opgezet en worden mooi verlicht door natuurlijke lichtinval. Beide ruimtes grenzen aan de overloop en bieden volop ruimte voor een bed, bureau en kastruimte. Eén van de kamers is voorzien van airconditioning. Dankzij de multi-inzetbaarheid kunnen de kamers eveneens dienen als hobbyruimte of rustige werkplek.
Sanitair
De volledig betegelde badkamer sluit aan op de overloop en is royaal uitgerust. U vindt hier een ligbad met douchekop, een aparte douchecabine met glazen wand, een zwevend toilet en een dubbele wastafel met spiegel. Dit maakt het tot een fijne plek om uw dag te beginnen of eindigen.
Tweede verdieping
2e verdieping
Via een vaste trap bereikt u de tweede verdieping, waar een extra slaapkamer en een praktische berging te vinden zijn.
Slaapkamer
De slaapkamer is ruim opgezet en multi-inzetbaar, bijvoorbeeld als kantoor, studeerkamer of logeerkamer. Dankzij de vorm en hoogte is er voldoende plek voor een bed, bureau en opbergruimte, waardoor dit een veelzijdige verdieping wordt.
Berging
Naast de slaapkamer bevindt zich een ruime berging waar u met gemak seizoensspullen, huishoudelijke benodigdheden en overige items kunt opbergen. Tevens vindt u hier een aansluitingen voor witgoed.
Tuin
Buitenruimte
De achtertuin is verzorgd en onderhoudsarm aangelegd, met een ruime bestrating die ideaal is voor het plaatsen van een loungeset of eettafel. Dankzij de ligging geniet u hier van veel zonuren, terwijl de overkapping een fijne plek biedt om het hele jaar door buiten te zitten. De tuin vormt daarmee een heerlijke verlenging van de woonruimte.
Garage
De garage grenst direct aan de woning en biedt ruime mogelijkheden voor het stallen van een auto, fietsen of gereedschap. Ook voor hobby's of extra opslagruimte is deze plek uitermate geschikt, waardoor u altijd over voldoende praktische ruimte beschikt.
Bijzonderheden
• Goed onderhouden gezinswoning
• Lichte woonkamer met airconditioning
• Open keuken met toegang tot de tuin
• Drie slaapkamers, waarvan één met airconditioning
• Multi-inzetbare zolderverdieping
• Ruime badkamer met ligbad en aparte douche
• Garage direct aan de woning
• Onderhoudsarme tuin met overkapping
• Oprit met parkeergelegenheid
• Voorzieningen, scholen en openbaar vervoer nabij
Plattegronden
179608942_1591877_ruite_begane_grond_first_design_20251121_9a702c.jpg
179608942_1591877_ruite_begane_grond_tu_first_design_20251121_734c57.jpg
179608942_1591877_ruite_eerste_verdiepi_first_design_20251121_bff0ef.jpg
179608942_1591877_ruite_tweede_verdiepi_first_design_20251121_be2caf.jpg