Topper
Te koop: Een huis waar herinneringen worden gemaakt!
Slakstraat 38, 6462 CV Kerkrade
€ 325.000,- k.k.
Beschrijving
Ontdek Slakstraat 38 - Een Thuis in Kerkrade!Gelegen in een rustige en kindvriendelijke wijk, Bleijerheide, van Kerkrade, biedt Slakstraat 38 een ideale uitvalsbasis voor gezinnen, professionals en ouderen. Met een uitstekende bereikbaarheid en nabijheid van lokale voorzieningen, ben je altijd binnen handbereik van alles wat je nodig hebt. Winkels, scholen, sportfaciliteiten en openbaar vervoer zijn slechts enkele minuten van je thuis.
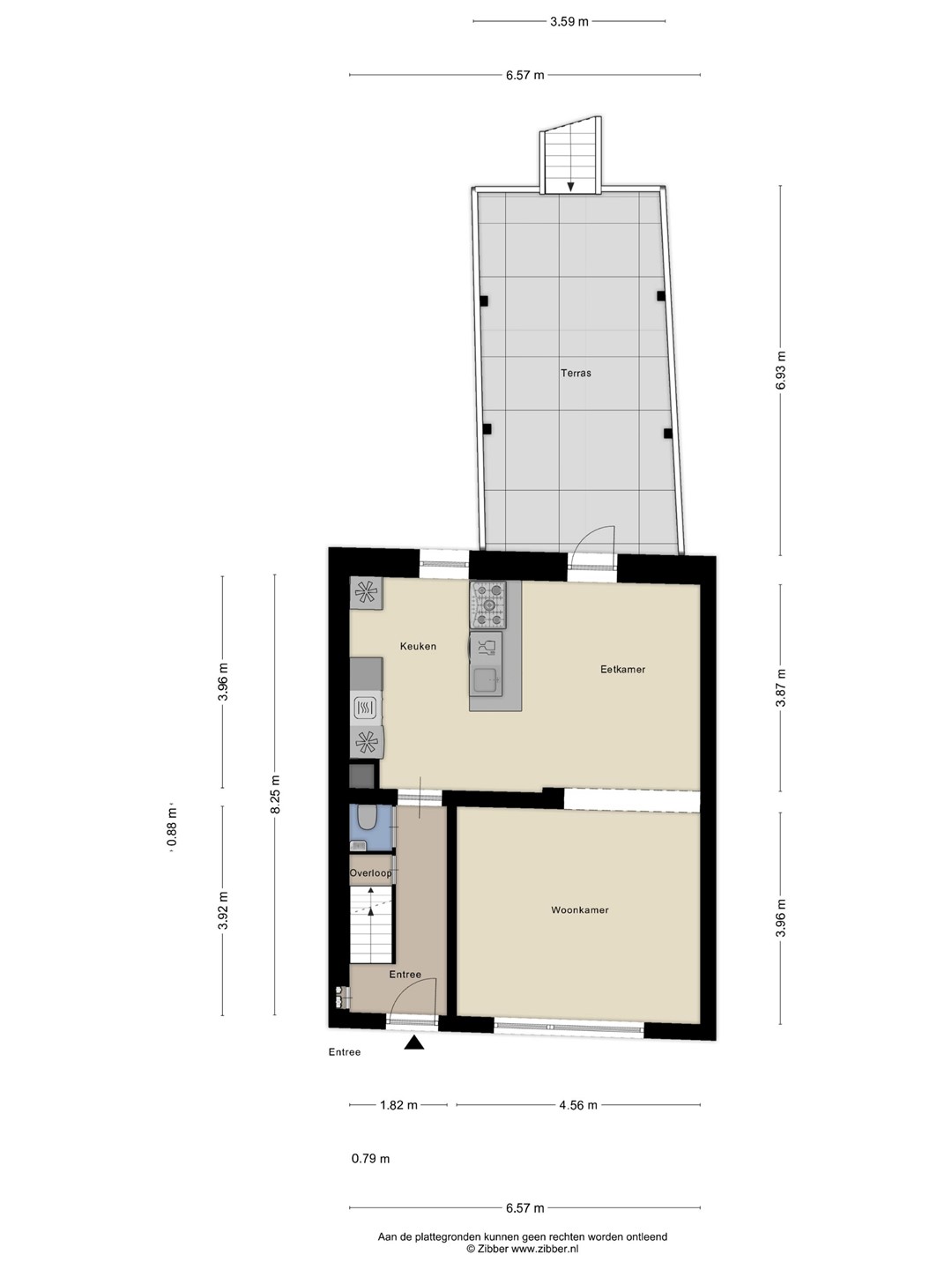
Indeling
Deze sfeervolle en ruime woning nodigt uit tot comfortabel leven. De woning is goed onderhouden en biedt een moderne uitstraling met een gezellige groot dakterras wat uitkijkt op een zeer ruime achtertuin. De ruime woonkamer is de perfecte ruimte biedt voor ontspanning en samenkomsten. Grote ramen zorgen voor natuurlijk veel licht en een zicht op de groene omgeving. De moderne keuken is een open opstelling en is uitgerust met moderne inbouwapparatuur, waaronder een oven, kookplaat en afwasmachine. Met voldoende opbergruimte is deze keuken de droom van elke thuiskok. Het ruime dakterras is vanuit de eetkamer bereikbaar. Bij de eerste zonnestralen is het hier aangenaam vertoeven.Eerste verdieping
De woning beschikt over totaal drie ruime slaapkamers, waarvan twee op de eerste verdieping zijn gelegen. Deze zijn keurig afgewerkt en allen voorzien van kunststof kozijnen. De badkamer is recent gerenoveerd en beschikt over moderne voorzieningen, zoals een inloopdouche, een ligbad en een design wastafel.Tweede verdieping
Op de zolder bevindt zich nog een hele grote slaapkamer welke makkelijk nog in twee slaapkamers zijn te maken. Ook bevindt zich hier de huur c.v. ketel (30 euro per maand)Tuin
Geniet van een goed onderhouden achtertuin, perfect voor buitenbarbecues, speeltijden met de kinderen of gewoon om te ontspannen in de zon. De tuin biedt ook privacy, zodat je ongestoord kunt genieten van je buitenruimte. De tuin is te bereiken via het dakterras of via de berging beneden. Hier kunt u naar hartenlust nog een eigen invulling aan geven. Mogelijkheden genoeg.Bijzonderheden
- Energiezuinige woning met dubbel glas en zonnepanelen (eigendom);- c.v. ketel gehuurd (maandbedrag 30 euro);
- Voldoende parkeergelegenheid;
- Dicht bij prachtige natuurgebieden voor wandel- en fietsliefhebbers;
Waarom Kiezen Voor Slakstraat 38?
Deze woning is niet alleen een fysieke ruimte; het is een plek waar herinneringen worden gemaakt. Of je nu samenkomt met vrienden, qualitytime doorbrengt met familie of geniet van de rust van je omgeving, Slakstraat 38 biedt het allemaal. De combinatie van comfort, moderne voorzieningen en een uitstekende locatie maakt dit huis tot een unieke kans.
Neem Contact Met Ons Op!
Ben je geïnteresseerd in Slakstraat 38 en wil je een bezichtiging plannen? Neem dan gerust contact met ons op via info@absoluutmakelaardij.nl
Wij staan klaar om al je vragen te beantwoorden en je te begeleiden naar jouw nieuwe thuis!
Kenmerken
| Overdracht | |
|---|---|
| Referentienummer | 00433 |
| Vraagprijs | € 325.000,- k.k. |
| Verwarming | € 150,- |
| Inrichting | Niet gestoffeerd |
| Inrichting | Niet gemeubileerd |
| Aanvaarding | In overleg |
| Aangeboden sinds | Donderdag 5 maart 2026 |
| Bouw | |
|---|---|
| Type object | Woonhuis, eengezinswoning, tussenwoning |
| Soort bouw | Bestaande bouw |
| Bouwperiode | 1930 |
| Dakbedekking | Dakpannen |
| Type dak | Zadeldak |
| Isolatievormen | Grotendeels dubbel glas Spouwmuren |
| Oppervlaktes en inhoud | |
|---|---|
| Perceeloppervlakte | 512 m² |
| Woonoppervlakte | 144,7 m² |
| Inhoud | 744 m³ |
| Oppervlakte overige inpandige ruimten | 65,4 m² |
| Oppervlakte gebouwgebonden buitenruimte | 25,5 m² |
| Indeling | |
|---|---|
| Aantal bouwlagen | 3 (en 1 kelder) |
| Aantal kamers | 4 (waarvan 3 slaapkamers) |
| Aantal badkamers | 1 (en 1 apart toilet) |
| Locatie | |
|---|---|
| Ligging | Aan rustige weg In woonwijk Nabij school |
| Tuin | |
|---|---|
| Type | Achtertuin |
| Hoofdtuin | Ja |
| Heeft een achterom | Ja |
| Staat | Goed onderhouden |
| Energieverbruik | |
|---|---|
| Energielabel | F |
| CV ketel | |
|---|---|
| Warmtebron | Gas |
| Combiketel | Ja |
| Eigendom | Huur |
| Uitrusting | |
|---|---|
| Warm water | CV-ketel |
| Verwarmingssysteem | Centrale verwarming |
| Tuin aanwezig | Ja |
| Heeft rolluiken | Ja |
| Heeft schuur/berging | Ja |
| Heeft een dakraam | Ja |
| Heeft zonnepanelen | Ja |
| Kadastrale gegevens | |
|---|---|
| Kadastrale aanduiding | Kerkrade F 1109 |
| Perceeloppervlakte | 512 m² |
| Omvang | Geheel perceel |