Beschrijving
Dit tweelaags appartement met een totale woonoppervlakte van circa 100m² biedt u een comfortabele woning met een ruime slaapkamer, een lichte woon- en eetkamer met moderne open keuken, een zonnig balkon, een eigen garage én een externe berging. Dankzij de verzorgde afwerking en de ruimte vormt dit appartement een aantrekkelijke basis voor wie comfortabel en stijlvol wil wonen.
De Agricolastraat bevindt zich in een centrale en goed bereikbare woonomgeving. Op korte afstand liggen diverse scholen, sportclubs en openbaarvervoer¬voorzieningen, waardoor dagelijkse bestemmingen gemakkelijk bereikbaar zijn. Supermarkten, winkels en andere alledaagse voorzieningen bevinden zich op korte afstand. Daarnaast bent u binnen enkele minuten op de belangrijkste uitvalswegen, waardoor andere delen van Sittard en omliggende steden uitstekend bereikbaar zijn. Een buurt die gemak en leefkwaliteit combineert met een prettige, rustige omgeving.
Indeling
Entree woning
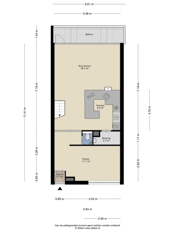
Via de gezamenlijke entree, waar ook de brievenbussen en intercoms zijn gesitueerd, betreedt u het pand. Eenmaal binnen neemt u de trap of de lift naar de woning. Zodra u binnenstapt, komt u terecht in een verrassend ruime kamer die zich uitstekend leent voor diverse invullingen. Of u nu een rustige thuiswerkplek zoekt, een ruime ontvangsthal met leeshoek wilt creëren of een ontspanningsruimte, deze multifunctionele kamer biedt voldoende mogelijkheden.
Woonkamer
De woonkamer vormt het hart van de woning en kenmerkt zich door de overvloedige lichtinval en de grote raampartijen. De ruimte biedt volop mogelijkheden voor het inrichten van een comfortabele zithoek en een royale eethoek.
Keuken
Aansluitend aan de woonkamer bevindt zich de moderne open keuken, die is ingericht met een praktisch U-vormig aanrechtblad en hoogwaardige inbouwapparatuur. Met een gasfornuis en afzuigkap, vaatwasser, koelkast, ovencombinatie is koken hier zowel comfortabel als plezierig. De lades en kastjes bieden veel opbergruimte en het handige barretje creëert een gezellige plek voor een snelle maaltijd of een praatje tijdens het koken.
Berging
Direct naast de keuken bevindt zich een compacte maar praktische berging, ideaal voor extra voorraad of keukenbenodigdheden, zodat alles netjes binnen handbereik blijft.
1e verdieping
Via de vaste trap in de woonkamer bereikt u de eerste verdieping. Deze etage combineert comfort en praktische voorzieningen, met een ruime slaapkamer, een moderne badkamer en een handige inloopkast die zorgt voor extra opbergruimte.
Slaapkamer
De slaapkamer grenst aan de overloop en biedt royale ruimte voor een tweepersoonsbed, een bureau of een ruime kast. De kamer voelt dankzij de prettige lichtinval bijzonder ruim aan en kan, indien gewenst, ook uitstekend fungeren als thuiswerkplek of hobbyruimte.
Sanitair
De moderne badkamer is volledig betegeld en uitgerust met een douche met glazen deur, een dubbele wastafel met spiegel, een zwevend toilet en een stijlvol opbergmeubel. De frisse afwerking en het goede onderhoud zorgen voor een comfortabele en verzorgde uitstraling.
Inloopkast
De inloopkast maakt deze verdieping compleet. Hier vindt u niet alleen veel opbergruimte voor kleding en linnengoed, maar tevens de aansluiting voor witgoed. Een functionele en prettige toevoeging aan deze verdieping.
Balkon
Buitenruimte
Het zonnige balkon is bereikbaar via de woonkamer en vormt een heerlijke buitenplek met veel zonuren. Dankzij het aanwezige zonnescherm kunt u ook op warme dagen comfortabel vertoeven. Er is voldoende ruimte voor een loungeset, waardoor dit balkon uitgroeit tot een ideale plek om te genieten van het buitenleven.
Garage
Bij de woning behoort een handige garage, perfect geschikt voor het stallen van een auto, fietsen of andere benodigdheden. Een waardevolle extra die bijdraagt aan het wooncomfort.
Bijzonderheden
• Ruim tweelaags appartement
• Circa 100 m² woonoppervlakte
• Goed onderhouden en modern afgewerkt
• Gezellige woonkamer met grote raampartijen
• Moderne open keuken met U-vormig aanrecht en inbouwapparatuur
• Multifunctionele hal-/kamer bij de entree
• Ruime slaapkamer met veel lichtinval
• Moderne badkamer en separate toiletruimte
• Inloopkast met witgoedaansluiting
• Zonnig balkon met zonnescherm
• Eigen garage en externe berging
• Gelegen in een rustige, goed bereikbare buurt
• Voorzieningen, scholen, sportclubs en OV op korte afstand
Plattegronden
179747197_1594975_agric_eerste_verdiepi_first_design_20251125_35cf1b.jpg
179747197_1594975_agric_tweede_verdiepi_first_design_20251125_6fc223.jpg
179747197_1594975_agric_vliering_first_design_20251125_17023c.jpg
179747197_1594975_agric_berging_first_design_20251125_033d1c.jpg
179747197_1594975_agric_garage_first_design_20251125_308432.jpg