Beschrijving
Deze twee-onder-een-kapwoning in Voerendaal biedt een uitstekende locatie met diverse voorzieningen op loopafstand. Het centrum van Voerendaal, een supermarkt en een treinstation zijn eenvoudig te voet bereikbaar. Bovendien ligt de dichtstbijzijnde uitvalsweg op slechts 3 minuten rijden, wat zorgt voor een goede verbinding met de omgeving.
Indeling
De indeling van deze woning biedt veel mogelijkheden en comfort. Via de hal/entree bereikt u verschillende ruimtes, waaronder de kelder, die voorzien is van een eigendom c.v.installatie. Het toilet in de hal is modern ingericht met een vrij hangend toilet en fonteintje. De ruime woonkamer/eetkamer, met een sfeervolle houtkachel en houten vloer, biedt de mogelijkheid om met een schuifpui een directe verbinding met de tuin of overkapping te realiseren.
De gesloten keuken is efficiënt ingericht met een 4-pitsgaskookplaat, afzuiging, koelkast, en diverse opbergkasten. Vanuit de keuken heeft u directe toegang tot zowel de garage, waar de witgoedaansluitingen zijn geplaatst, als de tuin, die beschikt over een royale overkapping.
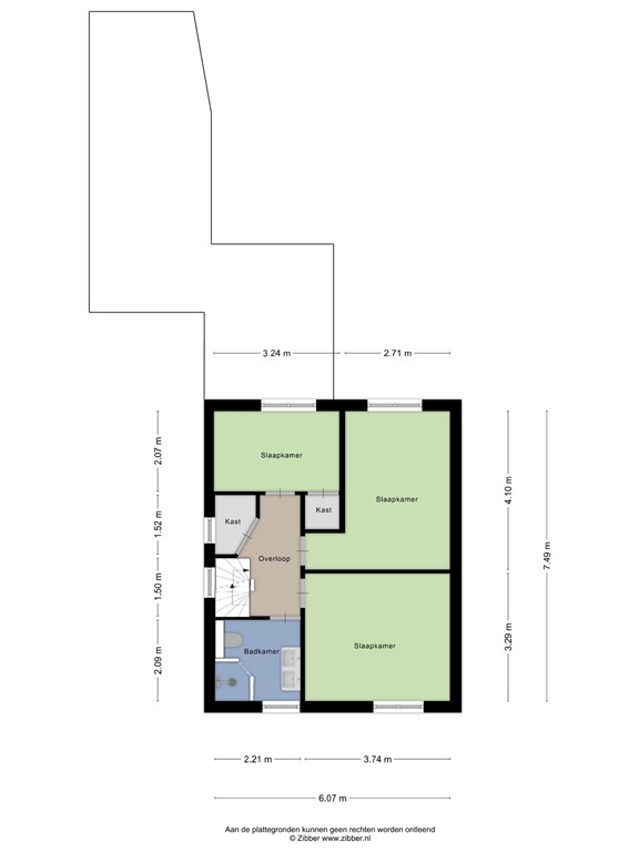
Eerste verdieping
Op de eerste verdieping van de woning bevinden zich drie goed bemeten slaapkamers, wat ideaal is voor een gezin of voor gasten. De badkamer is modern uitgevoerd en uitgerust met een inloopdouche, een dubbele wastafel en een vrij hangend toilet, wat zorgt voor extra comfort. Daarnaast bevinden zich op de overloop nog twee praktische inbouwkasten voor extra opbergruimte. Via een vaste trap heeft u toegang tot de tweede verdieping, die mogelijkheden biedt voor extra slaapkamers, een hobbyruimte of opslag, afhankelijk van uw behoeften.
Tweede verdieping
Op de tweede verdieping bevindt zich een vierde slaapkamer, die dankzij het dakkapel een aanzienlijk formaat heeft. Het dakkapel zorgt niet alleen voor extra ruimte, maar ook voor voldoende natuurlijke lichtinval, waardoor de kamer prettig en ruim aanvoelt. Deze ruimte kan veelzijdig worden ingezet, bijvoorbeeld als extra slaapkamer, thuiswerkplek of hobbyruimte.
Balkon
Een van de slaapkamers aan de voorzijde van de eerste verdieping beschikt over een Frans balkon, wat een stijlvolle en charmante toevoeging is. Dit biedt niet alleen een fraai uitzicht, maar ook een gevoel van openheid en lichtinval in de betreffende slaapkamer. Het Frans balkon kan de kamer een elegante uitstraling geven en een mogelijkheid bieden om van frisse lucht te genieten.
Tuin
De woning beschikt over een geheel omsloten tuin die veel privacy biedt. In de tuin bevindt zich een ruime overkapping, ideaal voor buitenactiviteiten ongeacht het weer. Daarnaast is er een terras, dat een perfecte plek is voor ontspanning of het ontvangen van gasten. De combinatie van het terras en de overkapping maakt de tuin een veelzijdige buitenruimte die op verschillende manieren kan worden benut.
Bijzonderheden
- Deze woning biedt veel potentie voor de nieuwe eigenaar;
- Gelegen op een fantastische locatie in het hart van Voerendaal, geniet u van de nabijheid van diverse voorzieningen zoals winkels, openbaar vervoer en uitvalswegen;
- Met uw eigen persoonlijke touch kan dit huis uw prachtig thuis worden!
Ter bescherming van de belangen van zowel koper als verkoper, wordt uitdrukkelijk gesteld dat een koopovereenkomst met betrekking tot deze onroerende zaak eerst dan tot stand komt nadat koper en verkoper de koopovereenkomst hebben getekend “schriftelijkheidsvereiste”). De termijn die wordt opgenomen voor eventuele (overeengekomen) ontbindende voorwaarden (bv. Financiering) is in de regel 4 tot 6 weken na het sluiten van de mondelinge wilsovereenkomst. De waarborgsom/bankgarantie is 10% van de koopsom. De koper dient deze 2 weken ná het vervallen van de ontbindende voorwaarden bij de desbetreffende notaris te deponeren. Koper is te allen tijde gerechtigd voor eigen rekening een bouwkundige keuring te (laten) verrichten dan wel andere adviseurs te raadplegen teneinde een goed inzicht te verkrijgen over de staat van onderhoud. Deze informatie is door ons met de nodige zorgvuldigheid samengesteld. Onzerzijds wordt echter geen enkele aansprakelijkheid aanvaard voor enige onvolledigheid, onjuistheid of anderszins, dan wel de gevolgen daarvan. Alle opgegeven maten en oppervlakten zijn indicatief
Plattegronden
446321_2D_Kelder_Keerberg_60_Voerendaal_04.jpg
446321_2D_Begane_Grond_Keerberg_60_Voerendaal_01.jpg
446321_2D_Begane_Grond_Tuin_Keerberg_60_Voerendaal_05.jpg
446321_2D_Eerste_Verdieping_Keerberg_60_Voerendaal_02.jpg
446321_2D_Tweede_verdieping_Keerberg_60_Voerendaal_03.jpg