Verkocht
Verkocht: Wonen met gemak en karakter, midden in Brunssum.
Dorpstraat 141, 6441 CD BrunssumBeschrijving
Wonen met gemak en karakter, midden in BrunssumAan de Dorpstraat woon je net even anders dan de rest: vrij, licht en met verrassend veel ruimte om je heen. Deze tweekapper combineert een moderne uitstraling met een praktische indeling die klopt tot in detail. De woonkamer strekt zich uit over de volledige diepte van het huis en verbindt binnen moeiteloos met buiten. In de tuin vind je alle rust en privacy die je nodig hebt – of je nu geniet van een zomerse barbecue, de kinderen laat spelen of gewoon even wilt ontspannen. De woning is netjes onderhouden, voorzien van drie slaapkamers en een ruime garage achter het huis. Een fijne plek waar je zonder gedoe kunt neerstrijken en waar elk seizoen zijn eigen charme heeft.
________________________________________
De buurt
De Dorpstraat ligt in een prettige woonwijk met alle dagelijkse voorzieningen binnen handbereik. Supermarkten, basisscholen en sportfaciliteiten bevinden zich op loopafstand, terwijl het centrum van Brunssum met zijn winkels, terrassen en weekmarkt slechts enkele minuten verderop ligt. De wijk is groen, rustig en kindvriendelijk, met volop speelgelegenheid in de buurt. Voor wie van natuur houdt, ligt de Brunssummerheide op korte afstand – ideaal voor een wandeling, fietstocht of picknick. Dankzij de ligging nabij de N300 en A76 zijn steden als Heerlen, Sittard en Maastricht bovendien snel bereikbaar.
Indeling
Begane grondVia een verhoogde entree kom je binnen in de hal met meterkast, toiletruimte en trapopgang. De leefruimte strekt zich uit over de volledige diepte van de woning en heeft grote ramen aan zowel de voor- als achterzijde, wat zorgt voor een prettige lichtinval. De donkere tegelvloer loopt door tot in de keuken, waardoor de begane grond een rustig geheel vormt. Er is genoeg ruimte voor een sfeervolle zithoek en een gezellige eethoek plaats je eenvoudig bij de open keuken. De keuken is gelegen aan de voorzijde, praktisch ingedeeld in een lichte hoekopstelling en voorzien van diverse apparatuur. Zo beschik je onder andere over een gaskookplaat, vlakscherm afzuigkap, oven en een koel-/vriescombinatie. Aan de achterzijde heb je via de tuindeur direct toegang tot het terras – ideaal voor zomerse dagen of een avond buiten eten.
Eerste verdieping
Eerste verdiepingOp de eerste verdieping vind je twee ruime slaapkamers en een derde kamer die momenteel in gebruik is als walk-in closet. De kamers hebben rechte wanden en voldoende daglicht, wat ze ook geschikt maakt als werk- of kinderkamer. De badkamer is grotendeels betegeld in lichte tinten en voorzien van een ligbad met douchemogelijkheid, wastafel en tweede toilet. Een raam zorgt hier voor natuurlijke ventilatie en een prettige lichtinval. De verdieping is afgewerkt met een laminaatvloer in warme houtkleur.
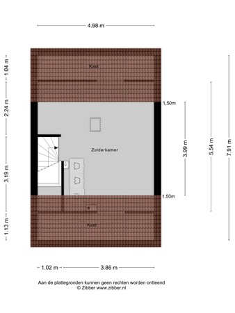
Tweede verdieping
Tweede verdiepingEen vaste trap brengt je naar de zolderverdieping – een grote, multifunctionele ruimte die momenteel wordt gebruikt als was- en hobbykamer. Hier bevinden zich de cv-installatie en aansluitingen voor wasmachine en droger. Dankzij de hoogte en het dakraam kun je de zolder eenvoudig inrichten als extra slaapkamer, werkplek of speelruimte.
Tuin
BuitenruimteDe achtertuin is verrassend diep en biedt volop mogelijkheden om buiten te leven. Direct achter de woning ligt een groot terras met sierbestrating en een verhoogd vlonderterras, perfect voor een loungehoek of buiteneettafel. De tuin is onderhoudsvriendelijk aangelegd en biedt veel privacy dankzij de erfafscheiding. Achterin vind je de vrijstaande garage van circa 20 m², bereikbaar via een achterpad. Hier is genoeg ruimte voor een auto, fietsen en extra opslag. Aan de voorzijde beschik je over een speels ingerichte tuin, met meerdere hoogteverschillen.
Bijzonderheden
Bijzonderheden• Twee-onder-een-kapwoning
• Moderne, neutrale afwerking
• Woonoppervlakte: ca 79 m²
• Perceel: 151 m²
• Ruime woonkamer met veel lichtinval
• Moderne keuken met inbouwapparatuur
• Drie slaapkamers
• Badkamer met ligbad en tweede toilet
• Vaste trap naar ruime zolder
• Vrijstaande garage (ca. 20 m²)
• Volledig voorzien van houten kozijnen met dubbele beglazing
• Diepe, onderhoudsvriendelijke tuin met veel privacy
• Rustige, groene woonomgeving nabij Brunssummerheide
Afsluiting
Deze tweekapper aan de Dorpstraat 141 combineert comfort, ruimte en een rustige ligging tot een woning waar je met plezier thuiskomt. Hier geniet je van licht, vrijheid en praktische leefruimte, zowel binnen als buiten. Een huis met potentie, karakter en een fijne energie. Plan snel een bezichtiging in en ervaar zelf wat deze woning zo bijzonder maakt.
Kenmerken
| Overdracht | |
|---|---|
| Referentienummer | 00443 |
| Vraagprijs | € 260.000,- k.k. |
| Verwarming | € 250,- |
| Inrichting | Niet gestoffeerd |
| Inrichting | Niet gemeubileerd |
| Status | Verkocht |
| Aanvaarding | In overleg |
| Aangeboden sinds | Woensdag 5 november 2025 |
| Laatste wijziging | Zaterdag 31 januari 2026 |
| Bouw | |
|---|---|
| Type object | Woonhuis, eengezinswoning, twee onder een kap woning |
| Soort bouw | Bestaande bouw |
| Bouwperiode | 1989 |
| Dakbedekking | Dakpannen |
| Type dak | Zadeldak |
| Isolatievormen | Grotendeels dubbel glas |
| Oppervlaktes en inhoud | |
|---|---|
| Perceeloppervlakte | 151 m² |
| Woonoppervlakte | 78,8 m² |
| Inhoud | 350 m³ |
| Oppervlakte overige inpandige ruimten | 19,9 m² |
| Oppervlakte externe bergruimte | 18,1 m² |
| Oppervlakte gebouwgebonden buitenruimte | 0,5 m² |
| Indeling | |
|---|---|
| Aantal bouwlagen | 3 |
| Aantal kamers | 5 (waarvan 4 slaapkamers) |
| Aantal badkamers | 1 (en 1 apart toilet) |
| Locatie | |
|---|---|
| Ligging | In centrum In woonwijk Nabij school |
| Tuin | |
|---|---|
| Type | Achtertuin |
| Hoofdtuin | Ja |
| Heeft een achterom | Ja |
| Staat | Normaal |
| Energieverbruik | |
|---|---|
| Energielabel | B |
| CV ketel | |
|---|---|
| Eigendom | Eigendom |
| Uitrusting | |
|---|---|
| Aantal overdekte parkeerplaatsen | 1 |
| Warm water | CV-ketel |
| Verwarmingssysteem | Centrale verwarming |
| Parkeergelegenheid | Vrijstaande stenen garage |
| Tuin aanwezig | Ja |
| Heeft een garage | Ja |
| Kadastrale gegevens | |
|---|---|
| Kadastrale aanduiding | Brunssum A 5906 |
| Perceeloppervlakte | 151 m² |
| Omvang | Geheel perceel |