Verkocht onder voorbehoud
Verkocht onder voorbehoud: Ontdek dit ruime 3-slaapkamer appartement in het bruisende hart van Brunssum!
Kerkstraat 140, 6441 BJ Brunssum
€ 170.000,- k.k.
Beschrijving
Welkom in dit leuke 3-slaapkamer appartement midden in het levendige centrum van Brunssum! Alles wat je nodig hebt, van winkels tot het openbaar vervoer, ligt letterlijk om de hoek. Parkeer je auto handig op het terrein aan de Doorvaartstraat en je avontuur kan beginnen!Indeling
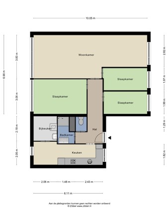
Op de vierde verdieping wacht dit leuke stekje op jou. De stijlvolle keuken is van alle gemakken voorzien: een vaatwasser, oven, koelkast, en een gezellige bar om aan te eten. Aangrenzend vind je de handige bijkeuken met aansluitingen voor je witgoed. De strakke badkamer heeft een instapdouche en een wastafelmeubel. Het aparte, frisse toilet is ook helemaal up-to-date.Vanuit de hal loop je naar twee keurige slaapkamers en een royale, lichte woonkamer. Vanuit daar bereik je de derde slaapkamer. Met ramen aan de voor- en achterkant is er altijd een zee van daglicht. En het uitzicht over het centrum? Geweldig!
Bijzonderheden
- Instapklaar en grotendeels gemeubileerd;- Boilercontract: €46,--maand (overname);
- VVE kosten: €232,44 per maand;
- Fantastische centrale ligging;
Klinkt perfect? Kom snel een kijkje nemen en ervaar het zelf!
Ter bescherming van de belangen van zowel koper als verkoper, wordt uitdrukkelijk gesteld dat een koopovereenkomst met betrekking tot deze onroerende zaak eerst dan tot stand komt nadat koper en verkoper de koopovereenkomst hebben getekend “schriftelijkheidsvereiste”). De termijn die wordt opgenomen voor eventuele (overeengekomen) ontbindende voorwaarden (bv. Financiering) is in de regel 4 tot 6 weken na het sluiten van de mondelinge wilsovereenkomst. De waarborgsom/bankgarantie is 10% van de koopsom. De koper dient deze 2 weken ná het vervallen van de ontbindende voorwaarden bij de desbetreffende notaris te deponeren. Koper is te allen tijde gerechtigd voor eigen rekening een bouwkundige keuring te (laten) verrichten dan wel andere adviseurs te raadplegen teneinde een goed inzicht te verkrijgen over de staat van onderhoud. Deze informatie is door ons met de nodige zorgvuldigheid samengesteld. Onzerzijds wordt echter geen enkele aansprakelijkheid aanvaard voor enige onvolledigheid, onjuistheid of anderszins, dan wel de gevolgen daarvan. Alle opgegeven maten en oppervlakten zijn indicatief
Kenmerken
| Overdracht | |
|---|---|
| Referentienummer | 00455 |
| Vraagprijs | € 170.000,- k.k. |
| Servicekosten | € 232,44 |
| Inrichting | Ja |
| Inrichting | Gemeubileerd |
| Status | Verkocht onder voorbehoud |
| Aanvaarding | In overleg |
| Aangeboden sinds | Maandag 13 april 2026 |
| Bouw | |
|---|---|
| Type object | Appartement, galerijflat |
| Woonlaag | 4e woonlaag |
| Soort bouw | Bestaande bouw |
| Bouwperiode | 1962 |
| Dakbedekking | Bitumen |
| Type dak | Platdak |
| Keurmerken | Energie prestatie advies |
| Isolatievormen | Dubbel glas |
| Oppervlaktes en inhoud | |
|---|---|
| Woonoppervlakte | 96 m² |
| Inhoud | 304 m³ |
| Oppervlakte overige inpandige ruimten | 6 m² |
| Indeling | |
|---|---|
| Aantal bouwlagen | 1 |
| Aantal kamers | 4 (waarvan 3 slaapkamers) |
| Aantal badkamers | 1 |
| Locatie | |
|---|---|
| Ligging | Dichtbij openbaar vervoer In centrum Nabij winkelcentrum |
| Energieverbruik | |
|---|---|
| Energielabel | G |
| Uitrusting | |
|---|---|
| Warm water | Elektrische boiler |
| Verwarmingssysteem | Blokverwarming |
| Heeft schuur/berging | Ja |
| Vereniging van Eigenaren | |
|---|---|
| Ingeschreven bij de KvK | Ja |
| Jaarlijkse vergadering | Ja |
| Periodieke bijdrage | Ja |
| Reservefonds | Ja |
| Meer jaren onderhoudsplan | Ja |
| Onderhoudsverwachting | Ja |
| Opstal verzekering | Ja |
| Kadastrale gegevens | |
|---|---|
| Kadastrale aanduiding | Brunssum D 1697 |
| Perceeloppervlakte | 2.030 m² |
| Omvang | Appartementsrecht of complex |
| Indexnummer | 54 |