Verkocht
Verkocht: Goed onderhouden appartement met 82 m² woonoppervlakte, gelegen op centrale locatie in Echt!
Leliestraat 12, 6101 LT EchtBeschrijving
Een goed onderhouden en ruim appartement wacht op u aan de Leliestraat 12 in Echt. Met een woonoppervlakte van 82m², twee slaapkamers, een nette keuken en badkamer, en een balkon biedt dit appartement alle ruimte die u zich kunt wensen. De lichte indeling en praktische opzet zorgen voor een comfortabele leefomgeving waarin u zich direct thuis zult voelen. Dit is een woning die uitnodigt tot bezichtiging.De ligging van dit appartement is gunstig en praktisch. Op korte afstand bevinden zich supermarkten en winkels voor de dagelijkse boodschappen, evenals scholen en sportclubs die binnen enkele minuten bereikbaar zijn. Ook openbaar vervoer is goed geregeld: bushaltes liggen op loopafstand en het treinstation van Echt brengt u eenvoudig naar omliggende steden. Daarnaast zijn de uitvalswegen richting Roermond, Sittard en Maastricht uitstekend bereikbaar, waardoor u profiteert van een centrale ligging met alle voorzieningen binnen handbereik.
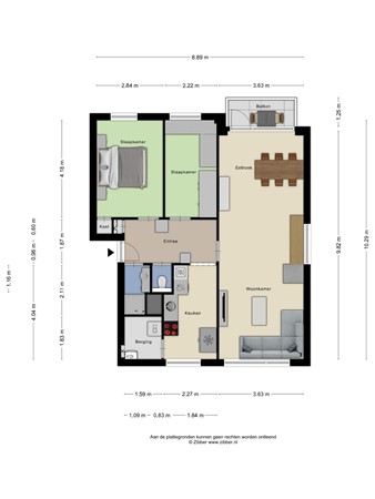
Indeling
Entree:De entree bevindt zich aan de voorzijde, waar u via de gezamenlijke toegang binnenkomt. Hier vindt u de brievenbussen en intercominstallatie. Vervolgens brengt de trap u naar de verdieping van dit appartement. Eenmaal aangekomen in de hal, ervaart u direct de praktische indeling: alle vertrekken zijn van hieruit bereikbaar, en er is voldoende ruimte voor een kapstok of een opbergmeubel.
Woonkamer:
Een royale woonkamer vormt het hart van deze woning. Dankzij de grote raampartijen aan zowel de voor- als achterzijde wordt de ruimte overspoeld met natuurlijk licht, wat een gevoel van openheid en ruimtelijkheid creëert. Hier kunt u gemakkelijk een comfortabele zithoek combineren met een gezellige eethoek. De woonkamer biedt bovendien toegang tot het balkon, waardoor binnen en buiten naadloos in elkaar overlopen.
Keuken:
Een separate keuken grenst direct aan de hal en is praktisch ingedeeld. Het rechte keukenblok biedt een ruim werkblad en is voorzien van moderne apparatuur, waaronder een inductiekookplaat met afzuigkap, een ingebouwde ovencombinatie, een losstaande vaatwasser en koelkast, en een spoelbak met kraan. Er is volop bergruimte in kasten en lades. Aangrenzend vindt u een berging met witgoedaansluitingen, die ideaal is te gebruiken als bijkeuken of extra opslagruimte.
Slaapkamers:
Twee volwaardige slaapkamers liggen aan de hal en zijn flexibel in te delen. Beide kamers ontvangen veel daglicht, waardoor ze een frisse en uitnodigende sfeer hebben. Of u nu kiest voor een royale slaapkamer, een logeerkamer, een kantoor of een hobbyruimte: de mogelijkheden zijn divers en sluiten perfect aan op uw woonwensen.
Sanitair:
Een moderne badkamer bevindt zich eveneens aan de hal en is geheel betegeld. De ruimte beschikt over een douchecabine met glazen deur, een wastafel met spiegel en opbergruimte, en een handdoekradiator die zorgt voor extra comfort. Daarnaast is er een separate toiletruimte aanwezig, wat bijdraagt aan het praktische karakter van de woning.
Balkon
Buitenruimte:Een knus balkon sluit direct aan op de woonkamer en vormt een aangename plek om te ontspannen in de buitenlucht. Hier kunt u een klein zitje of tafeltje plaatsen en genieten van de rust en het uitzicht. Het is de perfecte plek om op warme dagen buiten te vertoeven.
Bijzonderheden
Bijzonderheden:• Goed onderhouden appartement met 82 m² woonoppervlakte
• Gelegen op centrale locatie in Echt
• Twee slaapkamers, flexibel in te delen
• Lichte woonkamer met toegang tot balkon
• Separate keuken voorzien van diverse inbouwapparatuur
• Berging met witgoedaansluiting direct naast de keuken
• Moderne badkamer en separate toiletruimte
• Balkon met ruimte voor een zitje
• Nabij winkels, scholen, sportclubs en openbaar vervoer
• Uitstekende bereikbaarheid via uitvalswegen en station Echt
Kenmerken
| Overdracht | |
|---|---|
| Referentienummer | 00441 |
| Vraagprijs | € 225.000,- k.k. |
| Servicekosten | € 145,65 |
| Verwarming | € 103,- |
| Inrichting | Niet gestoffeerd |
| Inrichting | Niet gemeubileerd |
| Status | Verkocht |
| Aanvaarding | In overleg |
| Aangeboden sinds | Maandag 17 november 2025 |
| Laatste wijziging | Zaterdag 14 februari 2026 |
| Bouw | |
|---|---|
| Type object | Appartement, portiekflat |
| Woonlaag | 3e woonlaag |
| Soort bouw | Bestaande bouw |
| Bouwperiode | 1968 |
| Dakbedekking | Bitumen |
| Type dak | Platdak |
| Isolatievormen | Volledig geïsoleerd |
| Oppervlaktes en inhoud | |
|---|---|
| Woonoppervlakte | 82,5 m² |
| Inhoud | 273 m³ |
| Oppervlakte gebouwgebonden buitenruimte | 3,8 m² |
| Indeling | |
|---|---|
| Aantal bouwlagen | 1 |
| Aantal kamers | 3 (waarvan 2 slaapkamers) |
| Aantal badkamers | 1 (en 1 apart toilet) |
| Locatie | |
|---|---|
| Ligging | Aan rustige weg In woonwijk Nabij school |
| Energieverbruik | |
|---|---|
| Energielabel | D |
| CV ketel | |
|---|---|
| Warmtebron | Gas |
| Bouwjaar | 2000 |
| Combiketel | Ja |
| Eigendom | Huur |
| Uitrusting | |
|---|---|
| Warm water | CV-ketel |
| Verwarmingssysteem | Airconditioning Centrale verwarming |
| Heeft een balkon | Ja |
| Heeft schuur/berging | Ja |
| Vereniging van Eigenaren | |
|---|---|
| Jaarlijkse vergadering | Ja |
| Periodieke bijdrage | Ja |
| Reservefonds | Ja |
| Meer jaren onderhoudsplan | Ja |
| Kadastrale gegevens | |
|---|---|
| Kadastrale aanduiding | Echt K 5098 |
| Perceeloppervlakte | 1.530 m² |
| Omvang | Appartementsrecht of complex |
| Indexnummer | 28 |
| Kadastrale aanduiding | Echt-Susteren K 5098 |
| Omvang | Appartementsrecht of complex |
| Indexnummer | 18 |