Verkocht
Verkocht: Grondig gemoderniseerd en tot in detail afgewerkt!
Rosastraat 7, 6151 CA MunstergeleenBeschrijving
Instapklaar wonen met garage en een verrassend complete indeling!Deze twee-onder-een-kapwoning aan de Rosastraat 7 is de afgelopen jaren grondig gemoderniseerd en tot in detail afgewerkt. Dat zie je direct terug in de afwerking, de moderne keuken en de luxe badkamer, maar ook in de algehele staat van onderhoud. Hier hoef je niet eerst te verbouwen; alles is al gedaan.
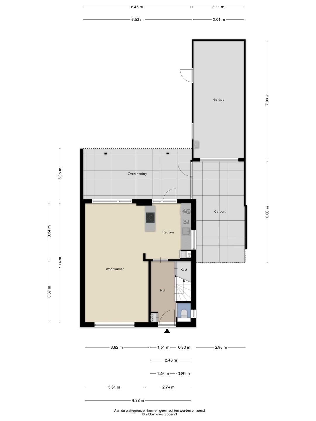
De woning beschikt over 91 m2 woonoppervlakte en staat op een perceel van 230 m2. De indeling is praktisch opgezet met een lichte woonkamer, open keuken, drie slaapkamers en een moderne badkamer. Daarnaast is er een zolder aanwezig voor opslag. Buiten vind je een ruime achtertuin met overkapping, een garage en een carport, waardoor ook parkeren goed is geregeld.
Een woning die netjes is onderhouden, logisch is ingedeeld en direct te betrekken is.
De buurt
De woning ligt in een rustige en overzichtelijke woonstraat in Munstergeleen, een dorp met een prettig woonklimaat en een goede mix van rust en voorzieningen. In de directe omgeving zijn diverse dagelijkse voorzieningen aanwezig, waaronder supermarkten, basisscholen en sportverenigingen. Ook voor een wandeling of een rondje buiten zijn er meerdere groenvoorzieningen in de buurt.
Voor een uitgebreider aanbod aan winkels, horeca en voorzieningen liggen zowel Geleen als Sittard op korte afstand. Hier vind je onder andere winkelcentra, treinstations en diverse horecagelegenheden.
De bereikbaarheid is daarnaast goed. Met de auto zijn de A2 en andere uitvalswegen snel te bereiken, waardoor steden als Maastricht en Eindhoven goed bereikbaar zijn. Ook het openbaar vervoer is op korte afstand beschikbaar.
Indeling
Begane grondBinnenkomst in de hal met meterkast, toiletruimte en trapopgang naar de verdieping. Vanuit de hal is er toegang tot de woonkamer.
De zitkamer ligt aan de voorzijde en biedt voldoende ruimte voor een sfeervolle zithoek en een eethoek past eenvoudig bij de open keuken. Grote raampartijen aan weerszijden zorgen voor een prettig daglicht. Aan de achterzijde sluit de open keuken aan. De keuken is modern uitgevoerd en opgesteld in een praktische indeling met een kookeiland, waardoor er extra werkruimte ontstaat en contact met de woonkamer behouden blijft. Door de moderne apparatuur (inductiekookplaat met geïntegreerde afzuiging, combi-oven, vaatwasser en koelkast) wordt koken een waar feestje. Vanuit de keuken is er directe toegang tot de overkapping en de tuin.
Eerste verdieping
Eerste verdiepingOp de eerste verdieping geeft de overloop toegang tot drie slaapkamers en de badkamer.
Alle slaapkamers zijn goed in te richten en beschikken over een fijne lichtinval. De indeling is netjes en efficiënt, waardoor elke kamer bruikbaar is als slaapkamer, werkruimte of kastenkamer. De badkamer is volledig vernieuwd, luxe afgewerkt en voorzien van een inloop-regendouche, wastafelmeubel met dubbele kraan en wandcloset. Ook de aansluiting voor wasapparatuur is hier aanwezig.
Tweede verdieping
Tweede verdiepingVia een vlizotrap is de zolder bereikbaar. Deze ruimte wordt gebruikt als bergzolder en biedt voldoende plek voor het opbergen van seizoensspullen.
Tuin
BuitenruimteDe achtertuin is grotendeels bestraat en onderhoudsvriendelijk ingericht. Direct aan de woning ligt een ruime overkapping, waardoor er beschut buiten gezeten kan worden. Zowel de carport als de garage is toegankelijk middels een loopdeur. Daarnaast is er ruimte op om de eigen oprit te parkeren, wat zorgt voor extra gemak en comfort.
Bijzonderheden
Bijzonderheden• Twee-onder-een-kapwoning
• Compleet gemoderniseerd
• Instapklaar en uitstekend onderhouden
• Woonoppervlakte: 91 m2
• Perceeloppervlakte: 230 m2
• Moderne keuken met kookeiland
• Luxe badkamer met inloopdouche
• Drie slaapkamers
• Bergzolder via vlizotrap
• Airconditioning aanwezig
• Overkapping in de achtertuin
• Garage en carport
• Eigen oprit
Afsluiting
Een woning die direct te betrekken is, met een praktische indeling en een verzorgde afwerking. Plan een bezichtiging om de indeling en afwerking zelf te ervaren.
Kenmerken
| Overdracht | |
|---|---|
| Referentienummer | 00454 |
| Vraagprijs | € 325.000,- k.k. |
| Verwarming | € 200,- |
| Status | Verkocht |
| Aanvaarding | In overleg |
| Aangeboden sinds | Vrijdag 10 april 2026 |
| Laatste wijziging | Dinsdag 28 april 2026 |
| Bouw | |
|---|---|
| Type object | Woonhuis, eengezinswoning, twee onder een kap woning |
| Soort bouw | Bestaande bouw |
| Bouwperiode | 1968 |
| Dakbedekking | Dakpannen |
| Type dak | Zadeldak |
| Isolatievormen | Dakisolatie Grotendeels dubbel glas Muurisolatie |
| Oppervlaktes en inhoud | |
|---|---|
| Perceeloppervlakte | 230 m² |
| Woonoppervlakte | 90,7 m² |
| Inhoud | 372 m³ |
| Oppervlakte overige inpandige ruimten | 14,2 m² |
| Oppervlakte externe bergruimte | 21,4 m² |
| Oppervlakte gebouwgebonden buitenruimte | 38,2 m² |
| Indeling | |
|---|---|
| Aantal bouwlagen | 2 |
| Aantal kamers | 4 (waarvan 3 slaapkamers) |
| Aantal badkamers | 1 (en 1 apart toilet) |
| Locatie | |
|---|---|
| Ligging | Aan rustige weg In woonwijk Nabij school |
| Tuin | |
|---|---|
| Type | Afgesloten tuin |
| Hoofdtuin | Ja |
| Staat | Goed onderhouden |
| Energieverbruik | |
|---|---|
| Energielabel | D |
| CV ketel | |
|---|---|
| CV ketel | VAILLANT |
| Warmtebron | Gas |
| Bouwjaar | 2016 |
| Combiketel | Ja |
| Eigendom | Eigendom |
| Uitrusting | |
|---|---|
| Aantal parkeerplaatsen | 2 |
| Aantal overdekte parkeerplaatsen | 1 |
| Warm water | CV-ketel |
| Verwarmingssysteem | Centrale verwarming |
| Keukenvoorzieningen | Inbouwapparatuur Kookeiland |
| Badkamervoorzieningen | Dubbele wastafel Inloopdouche Toilet Wasmachineaansluiting Wastafelmeubel |
| Parkeergelegenheid | Aangebouwde stenen garage |
| Heeft airco | Ja |
| Tuin aanwezig | Ja |
| Heeft een garage | Ja |
| Kadastrale gegevens | |
|---|---|
| Kadastrale aanduiding | Sittard-Geleen C 529 |
| Perceeloppervlakte | 230 m² |
| Omvang | Geheel perceel |